For You 木の実 物件詳細
| 所在地 | 山形県山形市木の実町 | ||
|---|---|---|---|
| 交通 |
JR奥羽本線 山形/バス乗車2分/NHK前/徒歩1分 |
||
| 賃料 | 6.5万円 | 管理費等 | - |
| 敷金 | - | 礼金 | - |
| 敷引/償却金 | - | 保証金 | - |
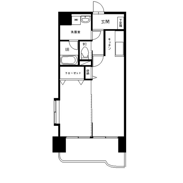
| 間取 | 1LDK | 専有面積 | 41.4m2 |
| 築年月 | 2007年04月 | 階 / 向き | 3階/東向 |
| 階建 | 9階建 | 建物種別 | マンション |
| 駐車場 | あり 11,000円 | ||||
|---|---|---|---|---|---|
| 保証人代行 | 必須:あんしん保証株式会社 初回保証料:総額家賃の70%(非課税、最低25,000円)口座引落手数料650円/月 | ||||
| 契約期間 | 普通 2年 | ||||
| 損保 | 要 1,100円 | 入居可能日 | 即入居可 | ||
| 構造 | RC | 総戸数 | 42戸 | ||
| 設備・こだわり |
|
||||
| リフォーム | - | ||||
| リノベーション | - | ||||
| その他費用 |
|
||||
| その他賃料 |
|
||||
| 備考 | 【オンラインで接客・内覧可能です】エントランスオートロック・TVモニターホン完備で安心!2口ガスコンロ付きのキッチン・温水洗浄暖房便座・洗髪洗面化粧台・エアコンなどの設備がございます♪ | ||||
| 問合せNO | 404017-1098757 | 取扱店舗 | 桜田本店 | ||
取引態様:専任媒介 情報掲載日:2026年02月28日 次回更新予定日:2026年03月14日
山形市立第一小学校(299m)
山形市立第三中学校(1501m)
山形県立霞城学園高校(1083m)- 山形市役所(935m)
- 山形木の実町郵便局(443m)
- 山形市立図書館中央分館(574m)
- 霞城公園(1810m)
- 医療法人社団松柏会至誠堂総合病院(336m)
- 荘内銀行山形営業部(368m)
- 荘内銀行山形南支店(369m)
- 七日町生鮮市場なないち(612m)
- ヤマザワ山交ビル店(680m)
- ファミリーマート山形七日町二丁目(594m)
- ローソン山形七日町一丁目店(749m)
- ドラッグヤマザワ山交ビル店(684m)
- 国立山形大学(1737m)
- TSUTAYA久保田店(2167m)
- モスバーガー山形七日町店(553m)
類似物件一覧
Chalte飯田西
6.5万円 アパート
- 敷 -
- 礼 1ヶ月
- 1LDK
- 山形県山形市
シャングリ・ラ千歳
5.6万円 マンション
- 敷 -
- 礼 -
- 1LDK
- 山形県山形市
シャングリ・ラ千歳
5.7万円 マンション
- 敷 -
- 礼 -
- 1LDK
- 山形県山形市
カメリアコート
6.5万円 マンション
- 敷 -
- 礼 -
- 1LDK
- 山形県山形市
For You 木の実
6.6万円 マンション
- 敷 -
- 礼 -
- 1LDK
- 山形県山形市
For You 木の実
6.6万円 マンション
- 敷 -
- 礼 -
- 1LDK
- 山形県山形市
ハイデンスニーズ
5.5万円 マンション
- 敷 2ヶ月
- 礼 -
- 1DK
- 山形県山形市
ハイデンスニーズ
5.6万円 マンション
- 敷 2ヶ月
- 礼 -
- 1DK
- 山形県山形市
情報提供会社






























